О конкретном случае по Магнитогорску, проспект Карла Маркса 164. Дом - хромая утка.
Возможно сочетание нескольких факторов. Часть их может носить техногенный умышленный характер, но здания подобные лет 30 назад снести надо было, а лучше не строить. Попробую объяснить почему.
Серия дома с, по-видимому, взорванным подъездом 1-439А это блочный хрущ, очень бюджетный вариант жилья, его разновидность по-видимому для более суровых условий, чем Ленинград или Москва.
Дом 1970-74 по разным документам. Т.е., некая доработанная подсерия 1-439А, повышенной этажности и, возможно, по замыслу авторов проекта, утеплённости за счёт тёплого чердака. Один из самых опасных на взрыво- и пожароопасность типовых проектов хрущей получается. ХУЖЕ чем базовый проект, где все вентканалы отдельные и выведены выше кровли.
http://dom.mingkh.ru/chelyabinskaya-oblast/magnitogorsk/646212
Кадастровая карта: https://publichnaya-kadastrovaya-karta.com/chelyabinskaya/magnitogorsk/k...
http://domofoto.ru/house/182877/ - единственное место где упоминается что дом 10-этажный и на реконструкции из-за взрыва.
http://prawdom.ru/k_seria.php?d=progjekt_docs/s-439a.php&s=195&r=99075
К сожалению конкретно данной подсерии найти документов не удалось, поэтому публикую выложенные на сайте https://astlena.livejournal.com/563961.html, за что автору огромное спасибо, сканы первых серий, конкретно 439-А 3П:
" Наружные стены — шлакобетонные блоки толщиной
400 мм; внутренние — бетонные блоки толщиной 390 мм;
перегородки — гипсобетонные 80 мм;
перекрытия — железобетонные толщиной 220 мм."
Шлакобетонные блоки это всегда местное сырьё. С местных ТЭЦ, металлургических комбинатов и бывало оно очень разным. Вплоть до того что слаборадиоактивным. Никаких тестирований на деградацию разумеется никто не проводил в каждом конкретном случае. Полагаю что от момента поставки сырьё для блоков могло иметь существенно отличные свойства, вплоть до раницы в твёрдости соседних блоков.
Есть важный источник информации - "Инструкция по технической эксплуатации крупноблочных жилых домов" Министерства коммунального хозяйства РСФСР от 5 мая 1966 утверждённая приказом №147 http://files.stroyinf.ru/Data2/1/4293795/4293795026.pdf
Разработчкик инструкции: Ленинградский НИИ Академии Коммунального хозяйства им. К.Д. Памфилова.
В параграфе 10 в лоб указано что наиболее часто встречающиеся дефекты указаны в главах первого раздела "Содержание отдельных частей крупноблочных жилых домов", например в параграфе 20 говориться о том что прочность данной серии обеспечивается прежде всего наружными несущими стенами и СВАРКОЙ закладных частей. Т.е. при коррозии, коя за полвека почти была заметной в сырых помещениях возможно существенное ослабление конструкции.
В Параграфе 21 на той же странице пишется про антикоррозийную обраотку - то как она выполнялась можно судить по автомобилям СССР того периода, по сравнению с автомобилями скажем производства Германии.
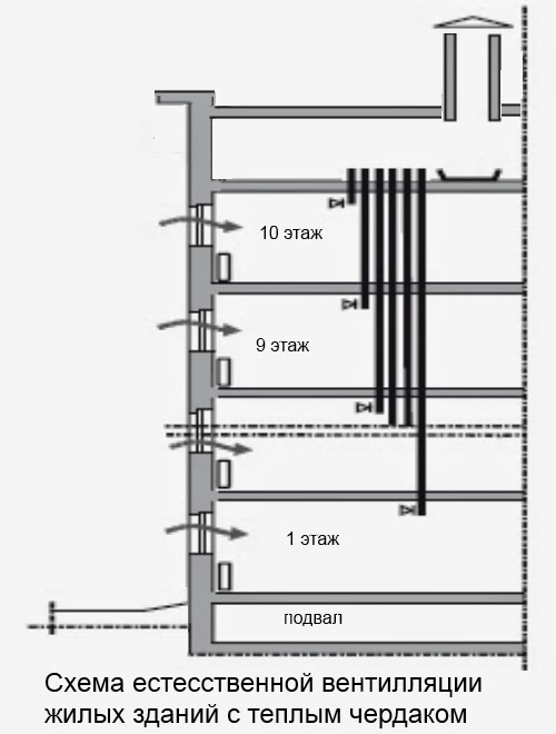
В главе VIII "Лестницы" в кратком описании на 63 страницы видны вертикальные стояки вентсистемы, образующие бока коробки лестничной клетки в случае 10этажного здания. По числу вентканалов.
Один из вариантов базовой серии, к сожалению какой именно - неуказано, что с оснорожностью заставляет относится к данному скану чертежа плана, явно не точно того, что можно видеть на фото внизу в Магнитогорске но дающее примерное представление о типичной планировке:

1. Из мухи слона.
Базовая серия строилась до 1966, совсем базовая с 1957 и была ПЯТИЭТАЖНОЙ а 439-2 вовсе ЧЕТЫРЁХЭТАЖНОЙ. Затем в какой-то момент решили что по той же технологии что строили 5-этажки можно строить и 10+1 этажные дома. Конструкция несущих стен не изменилась радикально, т.е. запасы прочности самой конструкции уменьшились, деградация ускорилась но ресурс продлевали и прежде всего в 1960-70-е годы и недавно.
Привычка строить даже в 1,5-2 раза выше чем возможно кончается как было в Ленинграде с 15-этажкой ЛГ-600 серии, тогда дом начал трещать и людей успели эвакуировать:

http://scbist.com/blogs/admin/601-obrushenie-15-etazhnogo-doma-serii-lg-...
Это не единственное обрушение, но одно из немногих где более-менее доказано самим фактом, что никаких ДОСТОВЕРНЫХ просчётов прочности не проводилось. В конторах, занимавшихся и занимающихся разработкой массовых серий в большей степени чем ранее расцвёл принцип Ходжи Насрединна, когда тот взялся за большие деньги научить осла говорить: "За двадцать лет или ишак умрет, или эмир, или я!"
Судя по части тех строек где был всё же ишак, т.е. здания. Большая часть разработчиков действительно умерла от старости, часть, судя по фамилиям, сменила страну проживания.
Вернёмся к технической части вопроса. Магнитогорск не самое приятное место по климату, в т.ч. для строительных конструкций. Обязательно будет постепенное снижение прочности блоков, особенно на границах, наружных ребрах, ввиду многочисленных циклов замораживания и оттаивания, постоянно-периодического перемещения границ точки росы и точки замерзания в объёме блока. Строили эту эконом-серию всегда из местного сырья и оно было очень разным. Полагаю первоначальные авторы серии знали это, потому и 5 этажей.

На фото видны свежезамазанные швы. Разрушение уже началось. Что говорить что при вдвое большей нагрузки оно пойдёт более интенсивно.
Схема вытяжек судя по фото, не удалось ознакомится с чертежами вентсистем данного здания - с тёплым чердаком, что при наличии газовых плит недопустимо с моей точки зрения, но теплее с точки зрения авторов типового проекта:


Точно так же Ronan point в Лондоне 16 мая 1968 года имела возможность перетекания газа в блоке.
Могли отрабатывать - дом был практически незаселён ещё. Во всех квартирах вынесло одну и ту же наружную стену. Формально никаких законов нарушено не было.
"A subsequent government inquiry revealed that no laws had been broken, but recommended significant changes to the existing regulations." https://www.londonsroyaldocks.com/forgotten-stories-the-ronan-point-expl...
Ощущение от разрушения, англичане вспоминают, впрочем интересных деталей мало:
На мысль о том что могли быть трещины или иные возможно и давние повреждения связанные с геологией района навеяла вертикальное обрушение справа от рухнувшего наполовину подъезда:

Выведенных выше кровли характерных плит с индивидуальными вентканалами как на фото базовой версии проекта с замазанными швами не видно на фото из Магнитогорска. Или швы ещё не дули или компенсировали бОльшим притоком тепла в помещения в отопительный период.
2. Геология
Вторым фактором после собственно конструкции была плохая геологическая изученность территории. Хотя зная как фальсифицируют в настоящее время результаты геологоразведочных работ, в частности факты сфальсифицированного бурения выполненного по результатам поисковых работ могу с достаточной долей уверенности предположить что полноценные изыскания проводятся далеко не всегда. Как и выводы подтасовываются в угоду застройщикам в ряде случаев это приводит к проблемам как при строителстве второй сцены Мариинского театра, тогда они вскрылись, но чаще это уходит в песок.
В вышеуказанной инструкции на 11-16 страница описываются некоторые возможные случаи, связанные с ослаблением фундаментов и действия, указываются документы. Я был в подвалах некоторых хрущёвок - это ад. Канализация лилась частично прямо на земляной пол. Иногда подобное встречалось и в центре Санкт-Петербурга. Подвалами, состоянием фундаментов или совсем или частично не занимались. Окончательно забросили с конца 1980-х.
В целом для коммунальщиков характерны ремонты, когда есть риск отзыва лицензии/разрыв контракта сейчас или лишения должности/премии в Союзе. До этого момента никто палец о палец не ударит. Осмотры если и были то больше формальные. Никто не будет вкладываться. А в случае обвала дома обычно обвиняли работника нижнего звена или мелкого начальника. Или никого т.к. все умерли.
Думаю можно до трещин крупных уже диагностировать мелкую трещиноватость установив, хотя бы временно, контактные микрофоны, фиксирующие НЧ/СНЧ и слышимые колебания. Подобные работы с полвека как проводили.
Кроме того можно и на слух, без приборов - плиты под сильным напряжением звенеть начинают, звук в комнатах где плита перекрытия с напряжением существенным будет другим. ГАП научил.
Прочность его никакая и это на Урале, где хоть редко, но бывают достаточно сильные толчки. Причём недалеко от Магнитогорска недавно были толчки с повреждениями зданий:
"в 3:58 по местному времени в Катав-Ивановском муниципальном районе была замечена сейсмическая активность на глубине около 10 километров. Отдельные колебания также были ощутимы в Магнитогорске... В Усть-Катавском районе обнаружены незначительные повреждения в двух из 24 социально значимых объектах. В Ашинском повреждены шесть из 45 объектов. В Катав-Ивановском районе пока проверены восемь из 36 соцобъектов, повреждения обнаружены в каждом из них... в шести многоквартирных домах появились трещины на перегородках и потолках. Есть также незначительные повреждения на одном из заводов. " Сентябрь 2018.
http://magnitogorsk.bezformata.com/listnews/magnitogorske-posle-sejsmich...
Касаемо почему я считаю что дело могло не ограничиться собственно взрывом газа.
Дело в том, что я несколько лет жил рядом с рухнувшими на Двинской общежитиями. Видел и последствия. В детстве часто их видел целыми, как и со слов родителей карауливших на стройке - типичная работа студентов в 1970-м, знаю о проблемах, что геолог-женщина высказывалась примерно так: "А кто им вообще разрешил здесь что-либо строить?" Там были ручьи рядом. Их засыпали.
Полагаю что нечто подобное могло быть вкупе с толчками и в Магнитогорске.
С 1 мин 05с видны некоторые подробности по правой стенке лестничной клетки.
Теперь вернёмся к конкретному зданию на Маркса.
Судя по фото горело наверху. внизу было повреждение несущих стен лестничной клетки причём с ОБЕИХ сторон.
Читатель данной статьи в комментариях к статье заметил что лифтовые двери выгнуты, следовательно был скачок давления в лифтовой шахте.
Другой, eagleowl73, заметил что мало гари и она аккуратно лежит. т.е. горение на данных участках было коротким.
Также webarkadiy отметил странное поведение свидетеля спускавшегося с 10 этажа почему-то пешком. Лифт был сломан?
olegNb12 предположил что не было одорирования, поэтому запах и не почувствовал свидетель.
Мне также это показалось странным как и спуск с 10 этажа пешком в 6 утра в гараж.
Каналы в таких хрущах данного типа что в Магнитогорске по-видимому идут до тёплого этажа. И это при газовых плитах, что очень хреново, я жил в хрущёвке где каналы были отдельные и выходили на панель на крыше - это показано на схеме базовой серии вверху, служившей выходным блоком каналов. Также видно на фото базовой серии выше.
На чердаке скопился газ и, возможно, перетёк на верхних 2-3 этажа. Как раз вертикальные оси 18 и 19 на чертеже. Судя по обгорелой лестнице горело и там а чем гореть-то было?
Нечему там гореть, кроме масляной краски МА-15, да газу просочившемуся сверху из неплотной двери/люка.
Поначалу подумал, что вполне возможно при ветре произошло опрокидывание вентиляции.:
"При наличии ветра опрокидывание вентиляции на верхних пяти этажах может наблюдаться при температурах наружного воздуха выше 0 °С." https://www.abok.ru/for_spec/articles.php?nid=2399
Подумал, мало ли оттепель.
Но проверка погодных условий не дала такого, на 6 часов утра 31 декабря 2018 было -28С и штиль согласно: https://magnitogorsk.nuipogoda.ru/31-декабря-2018
Т.е. данный погодный фактор можно исключить. Но учесть как фактор, чтобы погреться бомжам.
Другой вариант. Подумал, а что если закрыли выходные отверстия на тёплом чердаке? Тогда могли создаться условия при условии перетекания воздуха откуда-нибудь, допустим готовили и врубили мощную вытяжку на полную, задавив тем самым ВЕ с других кухонь. Но тогда на той кухне где это делали должна была быть капитальная утечка газа или все четыре конфорки погасли разом, что маловероятно.
Вытяжки современные давать могут до 4тыс м3/ч в канале 130-135мм, если последний этаж, сопротивление вентканала ввиду большой скорости потока порядка сотни Па подавив. Т.е. если заткнуто было плотно, а это бывает, если кому холодно или коммунальщики работы делали и забыли убрать, то возможно что 3-4 при отсутствии больших утечек образовалось и сам чердак камера статического давления (КСД), широко применяющаяся в вентиляции, откуда по вентканалам газовоздушная смесь попала на кухни жертв.
Прикинем объём тёпного чердака порядка 100м3, объём каналов изчезающе мал, объём кухонб-туалетов-прихожих не менее 10*25*2,5м - 625м округлим до 700м3.
Допустим что после утечек давления в каналы давануло 3000м3/ч
Итого имеем 700м3
Достаточно было по этим очень грубым прикидкам всего 15 минут.
Возможно этим объясняется что 5,45-5,35 утра началось и никто просто не успел среагировать.
Теперь другое - ОТКУДА взялось столько газа? Должно набежать было не менее 30м3 что за 15 минут с одной только кухни явно многовато

1,27м3/ч с одной плиты. Возможно спилили/продырявили трубу стояка?
Пока я не могу дать ответа на сей вопрос.
Или организованные действия типа групп смерти или дикарей от религии.
В пользу этого говорит обгорелая на верхних этажах лестница. Видимо люк или дверь был ОТКРЫТЫ.
Утро, нет и 6 утра - люди почти все спят. Газ в основном не почувствовали.
Основной взрыв был вероятно в той кухне и квартире где пустили газ, для этого надо было открыть все двери в квартире и, главное, на тёплом чердаке.
Имеем сочетаемые факторы УДОБНЫЕ для сочетаемой диверсии:
1. Пожаровзрывоопасный проект.
2. Невысокая прочность при взрыве на тёплом чердаке и одном из этажей.
3. Возможные малозаметные повреждения несущих конструкций здания в т.ч. от просадок грунта вызванных недавними слабыми толчками и более давними, возможно 20-40 лет назад и ранее.
4. Заткнутые отверстия вентиляции на тёплом чердаке здания.
5. Наличие в квартире где пустили газ мощной вытяжки с механическим побуждением.
Схема действий может быть примерно таковой:
Один заделывает дыры на тёплом этаже. Второй, возможно не связанный никак с этим человек делает уже собственно диверсию. С другой стороны это могло быть одно лицо. Он мог быть и погибшим, совершенно не думая о других делавшим действия. Как исламистом так и агентом с прошитой психикой - не велика разница.
Если два, то возможны т.н. группы смерти. Т.е. один террорист создал условия. Вплоть до бомжа мог пустить, которому было холодно и он позатыкал щели, ему просто кто-то открыл дверь на чердак. Было действительно холодно на улице. Второй, уже из оных групп риска, решил суициднутся общественно опасным способом по той или иной причине. Руководители теракта чистенькие и могут и далее сеять страх - основной эффект, раздувая в принадлежащих или контролируемых ими СМИ в т.ч. в Сети нужные направления трансформации общества.
По 19 веку основные террористы были те же, кто и взяли власть в результате переворота 1917. Русских там было мало. Сейчас - любая заинтересованная группа влияния. Коих с десятки найдётся. Думаю конечные заказчики всё те же что и более ста лет назад.
Своеобразное оружие, не правда ли?
Есть одна зацепка. Когда профессионал разрабатывает, но имеет ограниченную фантазию он может допускать одни и те же ошибки вряд ли намеренно (хотя всё может быть), это как подпись.
Заключается она в следюущем. Когда разбили влиянием на планер и ЭДСУ самолёта рейс из курорта на Синае в Город (Санкт-Петербург), была одна деталь - дело в том, что борт за несколько лет до этого имел повреждения в хвостовой части и, как следствие, пониженную прочность хвостовой части фюзеляжа. И за несколько недель до жертвоприношения, а по моим представлениям есть группировки/секты на Земле, которые до сих пор таким или иными образами приносят людей в жертву, владельцы авиакомпании продают свои доли. То же было с также с евреями при 911. Те кто не послушали предупреждение, в т.ч. бывшие советские евреи - многие погибли. Можно предположить, что в некоторых, вроде как случайных событиях, я не исключаю и трагедию в Магнитогорске, могут быть схожие следы, заключающиеся в небольших повреждениях или дефектах при постройке. О том, что проект был неудачен и о том что могли быть некоторые повреждения написал выше. В этом случае сработала или организация типа Моссада или какая иная группа/секта, имеющего данного разработчика терактов, в т.ч. типовых. Это важно, т.к. в этом случае нельзя исключать ещё нескольких в обозримом будущем и можно, как минимум часть их, предотвратить как пассивными мерами, бдительности проверки помещений самими жильцами домов с уязвимостями, так и активными действиями спецслужб. Зашивание в свиные шкуры фактических заказчиков и крупных организаторов может на энное время подействовать.
#терактыкакоружиепротивсознания, #сочетаемаядиверсиявМгнитогорске, #сочетаемаядиверсия
Методы ведения боевых действий негуманоидными системами, например сектами или группами влияния, опосредованно через людей против друг друга.



Комментарии
Эт точно. - разница невелика во всём.
( один сношает , другой дразнится )
Что именно вы имели ввиду?
Выводы ваши . Неконкретные они какие-то выходят что ли..
_______________________________________
не в обиду. просто мне по работе приходится каждый день иметь дело со взрывоопасной средой.
.... ( обостренное чувство чтоле сказывается )
Конкретные можно делать как физику-экспериментатору и инженеру систем зданий при наличии дополнительных исходных для анализа ситуации данных. В частности чертежей вентсистем, чертежей и фото до этого если есть, по чердаку и по подвалу. Плюс ГАПа иметь под боком - у меня очень толковый был архитектор, специалист по сложным случаям реконструкции в частности.
Нужна геологическая карта. Знать нужно были ли какие повреждения за почти 50 лет что здание стоит. Например постоянные утечки воды или канализации (сам видел) в хрущёбах да и более приличных старых домах не редкость. Капремонт был, хряпнули ВЧШГ входную балкой или чем ещё а менять не стали вот и течёт лет 40-50-60, дом покрывается трещинами.
Пока всё же мало данных для более определённых суждений.
Судя по величине обломков, дом построен не из панелей, а из кизяка, ему большой концентрации газа и не надо чтобы развалиться.
Может реновацию надо было начинать не с еще крепких московских домов, а с Урала, где действительно часты небольшие землетрясения.
При всех вышеперечисленных геоособенностях южноуральского региона НАБЛЮДАЕМ абсолютно абсурдную по замыслу и воплощению идею Российской медной компании по воплощению в жизнь в 10 км. от черты Челябинска и в 10 км. от единственного источника водоснабжения города - водохранилища Шершни Томинского горно-обогатительного комбината(аналога Карабаша, самого уёбищного места на планете)!!! Путин звонил с правительственного борта 3 года назад, отлетев из миазмов Челябинска, обещав поддержку. Ау! Гарант, ты где вместе со своей мифической поддержкой?! РМК финансово более выгодна по сравнению с налогами с охлоса, да и жить тому охлосу в донельзя загазованном регионе с гулькин нос! Вымрет! Зато его пенсионные накопления - в казну! Ну, а члены семей РМК как поживали себе в Средиземноморье, так и будут наворованные у народа деньги прожигать. Вы, ВВП, клялись в любви и преданности русскому народу, но всё оказалось, как, впрочем, всегда, банальной ложью! Бог Вам судья! Я - врач, я вижу развал\оптимизацию медицины, я вижу, как убивают высшее медицинское образование, я вижу, как якобы совершенствованием высшего мед.образования, сокращают рождаемость(не получат специализацию, не будет средств на рождение детей, не будет помощи бабушек в воспитании внуков, и т.д.), я вижу реальное снижение качества оказания помощи населению, в частности, онкологической, от которой буквально "загибается" мой регион. Вы, Президент, обязаны это знать! Вы обязаны активно вмешиваться и пресекать злоупотребления! Вы обязаны быть реалистом, а не падким на лесть! Приятные лестные слова,может, и приятны самолюбию, но куда важнее в жизни ЧЕСТЬ и ДОСТОИНСТВО! Да, и слово, данное лишь однажды, НАДО ДЕРЖАТЬ! ЭТО О ПОМОЩИ ЧЕЛЯБИНСКУ ОТ РМК!!! Люди Вам поверили, как же быть с этой верой?! Забыть?проигнорировать?вовсе сделать вид, что ничего и не было? Пригрезилось?! А как же слово Президента?!
Лидия, каким образом то что вы написали в данном конкретном посте относится к теме статьи?
Поясните, пожалуйста. причём тут РМК, "пригрезилось" и водохранилище Шершни?
Прикольно. Вы этот текст на скольких ресурсах разбросали?
С сейсмоопасных районов
Из всех прочих - детские учреждения, школы, места массового скопления людей.
Думаю и в новых проекта косяков предостаточно найдут, особенно с несущими стенами - по последним знаю даже конкретный адрес - Нахимова 15, фасад со стороны дома 19, примерно 4 этаж. Я Заказчика предупредил о неприятной "находке" и он в течении энного время продал квартиру там. Дом сносить нужно, ввиду того, что в несущей стене цемент есть только в полкирпича снаружи - там где декоративный кирпич, да примерно на кирпич со стороны помещения - там качество раствора уже хуже. Посередине раствор - это песок с небольшим добавлением цемента. Керн d150 вырезанный алмазной резкой в руках рассыпался. 2007 год. Воровали цемент со стройки возможно. Кроме того ввиду подтопления постоянного ряда домов фундаменты тысяч домов в СПб требуют реминерализации. Есть технология у бывших эрмитажевцев надёжная, вроде как (проверять всегда нужно всё равно на том материале который восстанавливают), долгая, с год, и дорогая - я находил их всвязи с разрушением мегалитов острова Веры, была проблема у их откопавшего археолога - ему грозил срок из-за начавшегося разрушения откопанных объектов, хотя на мой взгляд он ни в чём виновен не был, у археологов, к сожалению, нет специалистов по подобным технологиям + весьма небогатые организации. Есть также дорогая, но быстрая, недели, технология реминерализации у немцев.
Почитал Дедюхову "Обычная война с населением" (https://tehnar-ru.livejournal.com/4696467.html):
"И в Ижевске, и в Магнитогорске пар был вначале, а не дым и не пыль. В каждом случае обрушение начиналось с прорыва ввода магистрали теплотрассы, не вынесенной из-под дома, потому что нашим ссученным "эффективным собственникам" бабло надо было в офшоры выводить." ()
По этой схеме получается так: вода подмывает фундамент, стена проседает, рвётся газовая магистраль на стене, газ вытекает, искра - взрыв, окончательное разрушение. Это может объяснить взрыв/пожар в лифтовой шахте (затекание). Лифт на 9 или 10 этаже перекрыл выход взрыва на чердак. И задняя стена уцелела, потому что взрывная волна до неё не дошла - всё в лифте и на лестнице. ???
В 5-50 утра кто видел там пар? Если бы мужик в гараж пошедший увидел наверное заметил бы. Думаю 2-4-5 свидетелей также были бы, окна соседних с рухнувшим блоком без заметной наморози. Т.е. массового выброса пара всё же НЕ БЫЛО. Иначе бы все белыми были бы и окна как матовые при таком-то морозе!
Ещё заметил. Там магазин. А магазин это много случайных людей и тех кто от него кормятся.
Вот нашла:
Квартира №315 сдавалась посуточно уже давно. «В „нехорошей“ квартире №315 были прописаны двое: 29-летний Виталий. Он жив, но фактически проживает в другом доме по этой же улице, и его двухлетний сын, он тоже жив, проживает на улице Сталеваров в Магнитогорске», сообщает издание "МК".
Надо добавить, что дом обрушился в той своей части, где была оборудована арка для въезда во двор. Практически два подъезда нависали над улицей, поддерживаемые колоннами. Взрыв сотряс колонны, которые не выдержали и подломились, увлекая за собой все квартиры, расположенные над аркой
Журналисту "МК" удалось поговорить с жильцом соседнего подъезда, который постоянно жаловался, что очередной грузовик, спешащий на разгрузку в магазин, может задеть колонны, на которых, по сути, держались два подъезда, и предлагал их усилить. Даже составил смету и проект. Кто знает, быть может, прислушайся чиновники к старику, последствия трагедии не были бы такими ужасающими..
https://newizv.ru/news/incident/04-01-2019/zhurnalisty-mk-nashli-hozyain...
Зоны дробления? Пока на фото их нет.
Что за зоны дробления?
При воздействии ударной волны на твёрдые тела те разрушаются, дробятся, обычно для скальных пород чем выше плотность ударном фронте тем выше дробление будет - взрывники умеют регулировать подбирая ВВ, глубину заложения, порядок и тип решётки скважин склона, и т.п. как само дробление так и вынимание (экскавацию) разрушаемой породы. Если вы слишком крупно или слишком мелко её раздробите она может не пойти на обогащение, получения концентрата коий потом отправляется на металлургический комбинат.
Защищаемая вами в т.ч. гипотеза предполагает наличие ВВ. Отметать нельзя, но тогда должны быть зоны дробления и это довольно большая масса ВВ. Единственно что в пользу этого - колонны, как уязвимое место.
Скажем так, я скорее поверю в размыв прорывами бывшими и давно и в то утро их фундамента чем в то что был взрыв. Но против данной версии говорит то что свидетели не видели клубов пара, если порвалась к примеру теплотрасса. Да и не каждый главный инженер её в таком месте рискнёт проводить.
Я же считаю что произошёл взрыв воздушно-метановой смеси (самое простое) в объёме по определённой схеме. Зон дробления особо и не было, выдавило стенки опорные и здание сложило половину подъезда и часть другой половинки.
Дедюхова говорит о суффозии. Т.е. годами по-немногу вымывались компоненты из грунта под фундаментом, для этого достаточно естественных вод или небольшой постоянной утечки воды из труб. Потом внезапное резкое проседание части фундамента, просевшие панели тянут за собой другие связанные панели. В итоге большое обрушение.
Обратите внимание - левая стена спокойно стоит, даже небольшие панельки спереди остались. Получается, что арка спасла эту стену. На задней панели вообще никаких следов взрыва/пожара.
Нужны более детальные фото. Я не далее как несколько часов назад видел очередной размыв у здания - не знаю как в Магнитогорске а в СПб всё же стараются проводить коммуникации на энном расстоянии от домов, дабы не было подмыва фундаментов. Размывы с просадками на входе в водомерные узлы также видел.
Картина часто примерно такая - мёртвые или на ладан дышащие трубы и новенькие узлы учёта - т.к. это деньги эксплуатирующей организации,
стоимость ГВС часто в раза 3 выше чем если её готовить с применением газовой колонки или бойлера косвенного нагрева с газовым котлом непосредственно в квартире.
Возвращаясь к теме - показан ввод посредством ВЧШГ - чугуниной от колодца, где/около коего чаще всего и рвёт в оный узел.
Я люблю чугуний за долговечность но при сильно гуляющих грунтах она может потерять герметичность. Надёжнее финскими ПНД трубами, вроде сейчас и наши прилично научились делать, а то было в начале 1970- ставить стали и через энное время дыры появились а полиэтилен обладает мерзячной способностью делать в плёнках и даже толстых слоях поры, разрастающиеся до дыр. В общем отрабатывали технологию долго, сейчас они надёжнее металлических и долговечнее на ХВС, газе. В ряде стран с сейсмичностью, например Японии, стальные и вообще жёсткие трубы под землёй запрещены как создающие дополнительные риски для людей, их жилищ и инфраструктуры.
Что такое ГВС?
Горячее ВодоСнабжение
Спасибо, Ставр!
мёртвые или на ладан дышащие трубы и новенькие узлы учёта - т.к. это деньги эксплуатирующей организации
Приватизация доходов, национализация расходов. Капитализм...
Ещё: оказывается, при взрыве газа не происходит его полная утилизация, остаётся где-то половина, вот она уже горит спокойно, поджигая квартиру.
В 5-50 утра кто видел там пар? Если бы мужик в гараж пошедший увидел наверное заметил бы. Думаю 2-4-5 свидетелей также были бы, окна соседних с рухнувшим блоком без заметной наморози. Т.е. массового выброса пара всё же НЕ БЫЛО. Иначе бы все белыми были бы и окна как матовые при таком-то морозе!
Ещё заметил. Там магазин. А магазин это много случайных людей и тех кто от него кормятся.
Уже постил:
У себя на кухне как-то раз было помнится. (газ сжиженный из газгольдера)
Вообще никакого запаха не было. Открываю конфорку , чайник поставить, зажигаю спичку около неё. Как херанет. (окна пластик) я аж на задницу сел - думал каюк.
_______________________________________
после того всё нормально было, обслуга в конце года смотрела - тоже претензий никаких.
п.с. Автор. вы хоть раз сами, в своей жизни взрыв видели?
Видео: Житель Магнитогорска 32-летний Евгений Юрченко рассказал в интервью Пятому каналу, как ему удалось избежать трагической участи в то роковое утро.
Все, что нужно, я уже написал. В систему газоснабжения дома в Днепропетровске несколько часов поступал газ повышенного давления. А здесь через 15 мин. взрыв. Запаха газа не было.
Погуглите фото и видео разрушений дома Взрыв газа в Днепропетровске 2007 Сравните, подумайте.
Автор. вы хоть раз сами, в своей жизни взрыв видели?
_________________________________________________
Постулат. (звиняюсь) ...некорректно выразился
- "автор" имелся ввиду автор самой статьи.
Никаких проблем, камрад. А видео по ссылке все же посмотрите. Есть с чем сравнить.
Возможно, что специалисты и строительные серии домов сравнят.
Другая серия. Но в Днепропетровске, судя по тому, что вылетевшие панели разрушили дом напротив, бабахнуло сильнее. А в Магнитогорске секция сложилась в портал. Вот скрин из гугл мапс:
Вот тут его видно:
Тот же тёплый чердак. Вентиляционно схема сочетаемой диверсии была всё той же.
Моссад скорее всего или аналогичная их же организация с очень большим опытом сноса в т.ч. высотных зданий. С 911 была диверсия подготвоелнная на этапе проектирования. На момент сноса башни приносили уже убытки. Подобные частные маленькие фирмы-исполнители в США есть разве, возможно специалиста 4 и будет на все штаты и до 911 был снос менее высотного здания сходной конструкции. Ronan point в Лондоне 16 мая 1968 года
НОВОЕ здание, утечка газа, обрушилась несущая стена.
Ну, конечно, любой, кто увидит конструкцию рухнувшей секции, так и подумает: - "В чердаке проблема-то!"
Технически данная система в отличие от 5этажвных хрушёвок допускает саму возможность перетекания взрывоопасной смеси по помещениям куда идут вентканалы. Это КОНСТРУКТИВНАЯ особенность.
Одна и та же.
В кирпичной хрущёвке где жил несколько лет были отдельные каналы. Примерно такие, видные как рёбра плит на крышах.
Взрывоопасные смеси в таких уже не могут переместиться в значимых количествах с одного места на другое. Обратная тяга - удел верхних 2 этажей и всё равно газ будет более сильно перемешан с возддухом. Риск нестравненно ниже.
Об опасности с тёплым этажом было как минимум в 1970-е известно я одно время часто бывал в пожарке ввиду работы диспетчером матери там и слушал что пожарники говорили про техэтажи и тёплые этажи. И это когда ещё механическая вытяжка не была массовым явлением.
Не, в моссаде, конечно - они же просто спят и видят как жилой подъезд в Магнитогорске взорвать.
Тот факт, что панельные дома на долгий срок службы изначально не рассчитаны, особенно в условиях России и закономерно будут рушиться от любых причин по мере старения за 50 - выглядит скучно и не романтично.
1. То что израильтяне претендуют в т.ч. на террритории РФ как и уже ПОЛНЫЙ контроль всех сфер где можно поживится красноречиво свидетельствует корреляция богатейших россиян с "русским" списками форбс. Исключение, возможно, до 2012 г гражданин Англии Усманов. Сами они ничего делать подобного не будут. Но те, чьими аффилированными лицами они являются - вполне имеют подобные цели, те же владельцы ФРС.
http://www.forbes.ru/milliardery/362641-v-banyu-s-rotshildom-kto-iz-ross...
Cui bono?
Луций Кассий Лонгин Равилла - римский политик, судья
К примеру, атака на Крым и Камчатку, блокирование Балтики было следствием фактического ультиматума стоявших за Ротшильдами га Коген полного доступа к финансам РИ. Что и было в банковской сфере тогда же получено. Как факт до 1899 вся банковская система Россиийской Империи по факту подчинялась именно Ротшильдам и рекомендации Николаю II вложить свои деньи в основание ФРС были пустой формальностью. Они убивают кому много должны или у кого есть просто много денег. Недавний пример - пропавшие деньги Каддафи и Ливии под 0,5трлн евро, разграбление ряда стран.
Террор применяется для форматирование сознания масс как минимум со времён Та-Меху и Тебаиса тысяч 5 лет назад. До того было нечто подобное в Индии, описано в их классической древней литературе.
Кроме того диверсии применялись, когда надо было завладеть активами в 1990-е годы весьма широко. Владелец швейной фирмы, в коей мать работала консультантом /замдиректора по производству был убит спустя примерно пару лет, после того как убили ВСЮ его семью и сказали "попробуй теперь с этим жить". У моего хорошего знакомого с Москвы, отличного ИТ-шника и еврея убили дочь.Такие вещи не забывают.
Люди как и любые гуманоиды весьма дикие способы поведения имеют. Если системно, то подобное, как раковая опухоль в теле государственной машины - типичной негуманоидной системы.
Если смотреть шире, то земную колонию всё больше и больше разрушают с определённой целью. Это понятно вне человеческих рамок но имеет место быть. Она падает в цене если переводить на ваши меры. Как и её руководство.
2. Я считаю что причина обрушения данного дома далека от скуки. Нужно было действие с конкретными лицами в конкретном месте.
не множьте сущности сверх необходимости
Бритва Оккама полезна сейчас да и тогда когда он предложил как узкоспециализированный инструмент схоластического диспута. Её перенос шире данного применения делает обрезание возможностей.
Ещё раз: в Днепропетровске в систему несколько часов шел газ другого давления. И этот газ другого давления несколько часов через домовые приборы шел в квартиры и подъезд. Затем взрыв. Судя по всему от любой искры, например холодильника.
В Магнитогорске, если верить человеку из видео - запаха газа за 15 мин. до взрыва не было. Значит не было утечек в подъезд. Давление газа при этом было в норме - расчетным.
Сравните результаты обрушений. Практически похожи. Вопрос - что взорвалось?
При закрытой плотно двери на лестницу человек мог не почуять газа. Не было его в доме.
Либо он был но не было одоранта - тогда это газ не из сети а с разлома как предположил один из собеседников тут.
как он из разлома в подъезт то попал... там внизу арка автомобильная...
Лестница чай не с 3 этажа идёт. Коммуникации в т.ч. канализационные трубы Ду100 - также.
ага... из разлома под давлением полз по трубам...
не знаю как там с естественным разломным газом... тот что в трубах так не умеет, он тяжелее воздуха... метан легче... но вариант что он собрался на чердаке попутно закачав всю вент систему...
имхо... не научная фантастика.
На чердаке стоит хлопушка, выше крыши канал путём загогулин выводится с тёплого чердака. Могли и поломать. Если по канализации была утечка метана и по лифтовой шахте то загазованность могла иметь место быть. Хотя скорее открытые краны плиты+мощная вытяжка. Сейчас есть на 4-6м3/ч реально пробить они смогут если напоследнем этаже где-то 2-4тыс м3/ч.
таки это спецом накачать надо... своим ходом не взлетит... если открыть весь газ в подъезде упадет ШГРП. как при утечке...
Как должен упасть шкафной газорегуляторный пункт? Вниз? Основная задача газорегуляторного пункта, именно пункта с несколькими линиями регулирования, шкаф на дом не повесят, это для небольших объектов- поддержка заданного давления на выходе независимо от расхода и колебания давления на входе. Просто при большом расходе все линии регулирования откроются полностью. Одорант, который дозируют в газ, этилмеркаптан, он специально подобран максимально похожим на трупные и всякие неприятные человеку запахи. По поводу повышенного давления. На выходе ГРП в ОБЯЗАТЕЛЬНОМ порядке стоят предохранительные клапаны + ПСК (предохранительный сбросной клапан ).
В Днепропетровске именно он и был неисправен.
Как это возможно?
"Suicide_blonde" - спасибо за ценные дополнения ситуации.
ФСБ, вероятно, схему разбора дома засняла, и восстановит порядок разрушения, выяснят, с чего всё началось, установит причину и что конкретно взорвалось. Судя по тому, что туда прилетел Путин, терракт весьма вероятен. Но человек мог выйти из другого подъезда.
Результаты обрушений похожи, потому что похожи конструкции домов. Я бы предположил, стеновые панели первого и/или второго этажа, обращённые в портал, вышибло где-то в районе перекрытия между первым и вторым, стена села и потянула за собой перекрытия всех этажей. Сила взрыва не была достаточно велика, чтобы вылетевшие панели сбили колонны. Иначе левая часть портала бы тоже рухнула.
Объёмно сдетонировало и лестница была без газа, только сверху чуть видно подкопчёности. В целом нужны детальные снимки. Т.е. она как буфер сработала.
Почитал Дедюхову "Обычная война с населением" (https://tehnar-ru.livejournal.com/4696467.html):
"И в Ижевске, и в Магнитогорске пар был вначале, а не дым и не пыль. В каждом случае обрушение начиналось с прорыва ввода магистрали теплотрассы, не вынесенной из-под дома, потому что нашим ссученным "эффективным собственникам" бабло надо было в офшоры выводить." ()
По этой схеме получается так: вода подмывает фундамент, стена проседает, рвётся газовая магистраль на стене, газ вытекает, искра - взрыв, окончательное разрушение. Это может объяснить взрыв/пожар в лифтовой шахте (затекание). Лифт на 9 или 10 этаже перекрыл выход взрыва на чердак. И задняя стена уцелела, потому что взрывная волна до неё не дошла - всё в лифте и на лестнице. ???
При обрушении уже не будет взрывоопасной концентрации. Гореть что-то может и будет очень недолго, секунды. Я был свидетелем когда в нескольких км от нас на снимаемой даче взорвался под СПб газопровод примерно в 2005-6гг.
По правде сказать лишь малый высвет и долгое развитие событий отличало от применения тактического ЯО.
Страницы